Ce workshop, dispensé sur deux jours, propose à un groupe d’étudiant.e.s une introduction à l’élaboration d’un projet de design d’intérieur. Il permet aux participant.e.s d’expérimenter les divers aspects d’un projet de conception, dans le cadre d’un cours pratique, et d’échanger en groupe sur les réalisations de chacun.e. Voici 3 propositions de cabanes, conçues par nos étudiantes Cora, Marjolaine et Marjorie, lors de ces derniers workshops !

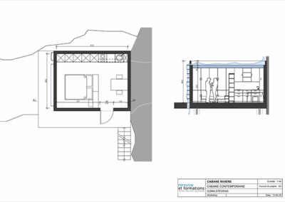
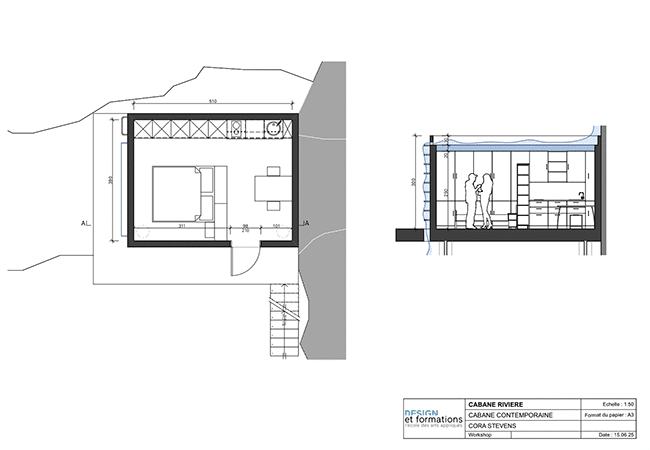
Cora a conçu une “cabane rivière” : un concept singulier pour l’aménagement de cette petite cabane. Posé directement sur le cours de la rivière, le projet s’ancre dans le paysage avec délicatesse. Malgré sa taille modeste, il offre un réel confort de vie ainsi que toutes les commodités nécessaires à ses utilisateurs.

Marjolaine a quant à elle proposé une “cabane cachette” : elle a imaginé une cabane contemporaine dissimulée dans le jardin d’une grande propriété arborée. Pensée comme une retraite dédiée à l’écriture, elle se niche dans la nature telle une cachette secrète, à l’intérieur même d’un arbre. Un refuge intime pour se retirer, réfléchir et laisser naître les mots.

Enfin, Marjorie a imaginé une “Cabane Lava » : à nouveau un concept original et innovant pour l’aménagement de ce petit logement contemporain. Inspiré d’un volcan et de sa coulée de lave, ce projet de cabane s’intègre dans son environnement, tout en offrant un maximum de confort et de commodités à ses utilisateurs.